5250

Купить двухкомнатную квартиру 55 м2 в г. Павловский Посад, 10 / 12

7 730 100
140 548 ₽/м²
предложить свою цену
площадь
55 м²
этажность
10 из 12
  • Количество комнат:
    2
  • Площадь:
    55 кв.м.
  • Этажность:
    12
  • Этаж:
    10
  • Материал стен:
    Кирпичный
Запись на просмотр
Все документы готовы. Готовы к просмотру
отправляя запрос, Вы соглашаетесь на обработку персональных данных
Описание

Дом сдан!
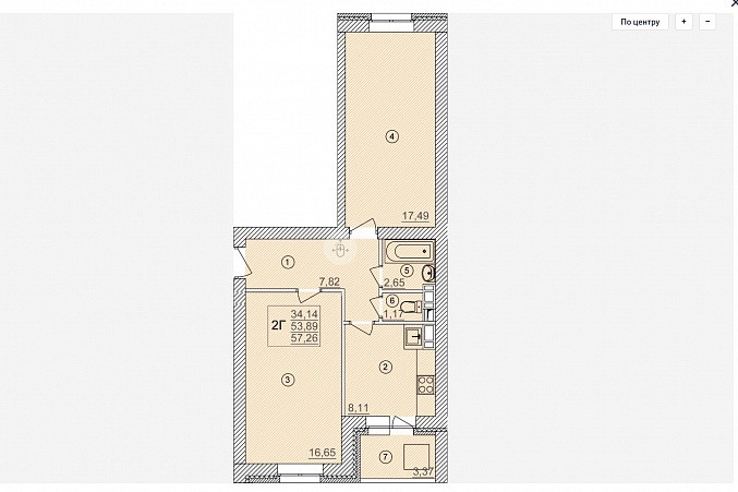
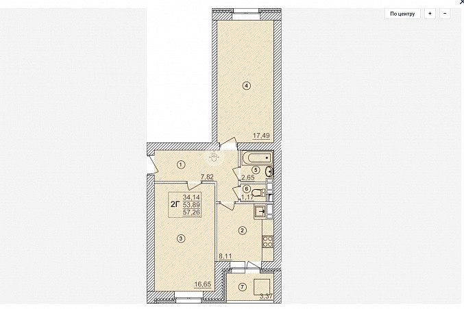
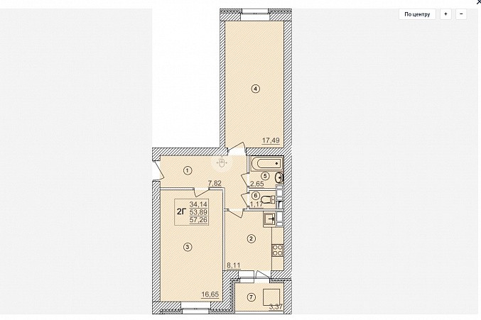
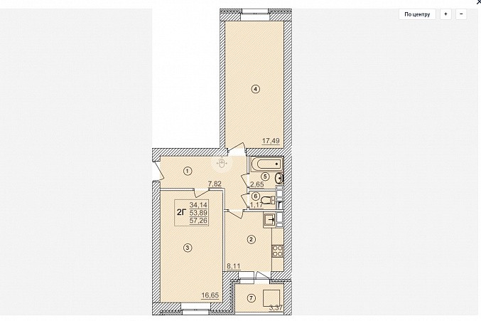
Площадь квартиры с учетом лоджии 57.3 кв.м.
Квартира от застройщика! Возможна семейная ипотека - 6% годовых.
Двухкомнатная квартира в ЖК Южный Павловский Посад, удобная планировка - окна квартиры на разные стороны дома. Санузел раздельный. Большие комнаты 16.7 и 17.5 кв.м. Просторная квадратная лоджия с выходом из кухни.
В квартире выполнена стяжка пола. Установлены хорошие радиаторы отопления, хорошие окна.
Дом сдан в 2024 году. Порядка 50% жильцов уже сделали ремонт - со временем все меньше и меньше шума от ремонта.
В каждом подъезде 2 лифта: пассажирский и грузовой. Удобная колясочная - место, где можно хранить детские коляски и велосипеды. Достаточное количество парковочных мест возле дома.
10 мин. пешком жо ж/д вокзала (1 ч до Москвы), рядом школа, детский сад, Парк Победы, пункты выдачи заказов Озон, Вайлберис.

Все документы готовы к сделке.
Рассматриваются любые условия приобретения. Ипотека – оказываем квалифицированную помощь в одобрении, консультация и подбор программы бесплатно. Военная ипотека. Материнский капитал, любые сертификаты.

Возможен трейд-ин или продажа Вашей недвижимости (обсуждается дополнительно).

Оперативный показ в удобное для Вас время.

полное описание
#3660
Просмотрено более 284 раз

Похожие предложения

ул. Южная, д. 7, г. Павловский Посад
ул. Южная, д. 7, г. Павловский Посад
ул. Южная, д. 7, г. Павловский Посад
ул. Южная, д. 7, г. Павловский Посад
ул. Южная, д. 7, г. Павловский Посад
ул. Южная, д. 7, г. Павловский Посад
ул. Южная, д. 7, г. Павловский Посад
ул. Южная, д. 7, г. Павловский Посад
ул. Южная, д. 7, г. Павловский Посад
ул. Южная, д. 7, г. Павловский Посад
2-к квартира, 55 кв.м, 10/12
ул. Южная, д. 7, г. Павловский Посад
  • Количество комнат:
    2
  • Этажность:
    12
  • Этаж:
    10
7 730 100
ул. Южная, д. 7, г. Павловский Посад
ул. Южная, д. 7, г. Павловский Посад
ул. Южная, д. 7, г. Павловский Посад
ул. Южная, д. 7, г. Павловский Посад
ул. Южная, д. 7, г. Павловский Посад
ул. Южная, д. 7, г. Павловский Посад
ул. Южная, д. 7, г. Павловский Посад
ул. Южная, д. 7, г. Павловский Посад
ул. Южная, д. 7, г. Павловский Посад
ул. Южная, д. 7, г. Павловский Посад
2-к квартира, 52.9 кв.м, 9/12
ул. Южная, д. 7, г. Павловский Посад
  • Количество комнат:
    2
  • Этажность:
    12
  • Этаж:
    9
7 450 650
ул. Советская, д. 32А, г. Электрогорск,
ул. Советская, д. 32А, г. Электрогорск,
ул. Советская, д. 32А, г. Электрогорск,
ул. Советская, д. 32А, г. Электрогорск,
ул. Советская, д. 32А, г. Электрогорск,
ул. Советская, д. 32А, г. Электрогорск,
ул. Советская, д. 32А, г. Электрогорск,
ул. Советская, д. 32А, г. Электрогорск,
ул. Советская, д. 32А, г. Электрогорск,
ул. Советская, д. 32А, г. Электрогорск,
2-к квартира, 43.3 кв.м, 1/5
ул. Советская, д. 32А, г. Электрогорск,
  • Количество комнат:
    2
  • Этажность:
    5
  • Этаж:
    1
3 300 000
д. Чисто-Перхурово, Павлово-Посадский р-н., д. 16,
д. Чисто-Перхурово, Павлово-Посадский р-н., д. 16,
д. Чисто-Перхурово, Павлово-Посадский р-н., д. 16,
д. Чисто-Перхурово, Павлово-Посадский р-н., д. 16,
д. Чисто-Перхурово, Павлово-Посадский р-н., д. 16,
д. Чисто-Перхурово, Павлово-Посадский р-н., д. 16,
д. Чисто-Перхурово, Павлово-Посадский р-н., д. 16,
д. Чисто-Перхурово, Павлово-Посадский р-н., д. 16,
д. Чисто-Перхурово, Павлово-Посадский р-н., д. 16,
д. Чисто-Перхурово, Павлово-Посадский р-н., д. 16,
2-к квартира, 44.9 кв.м, 2/2
д. Чисто-Перхурово, Павлово-Посадский р-н., д. 16,
  • Количество комнат:
    2
  • Этажность:
    2
  • Этаж:
    2
2 100 000
Мы используем cookie-файлы для улучшения вашего взаимодействия с сайтом Узнать подробнее
Понятно